Leave a Message

By providing your contact information to The James Weiss Team , your personal information will be processed in accordance with The James Weiss Team 's Privacy Policy. By checking the box(es) below, you consent to receive communications regarding your real estate inquiries and related marketing and promotional updates in the manner selected by you. For SMS text messages, message frequency varies. Message and data rates may apply. You may opt out of receiving further communications from The James Weiss Team at any time. To opt out of receiving SMS text messages, reply STOP to unsubscribe.

Thank you for your message. We will be in touch with you shortly.

Explore Our Properties

Property Description

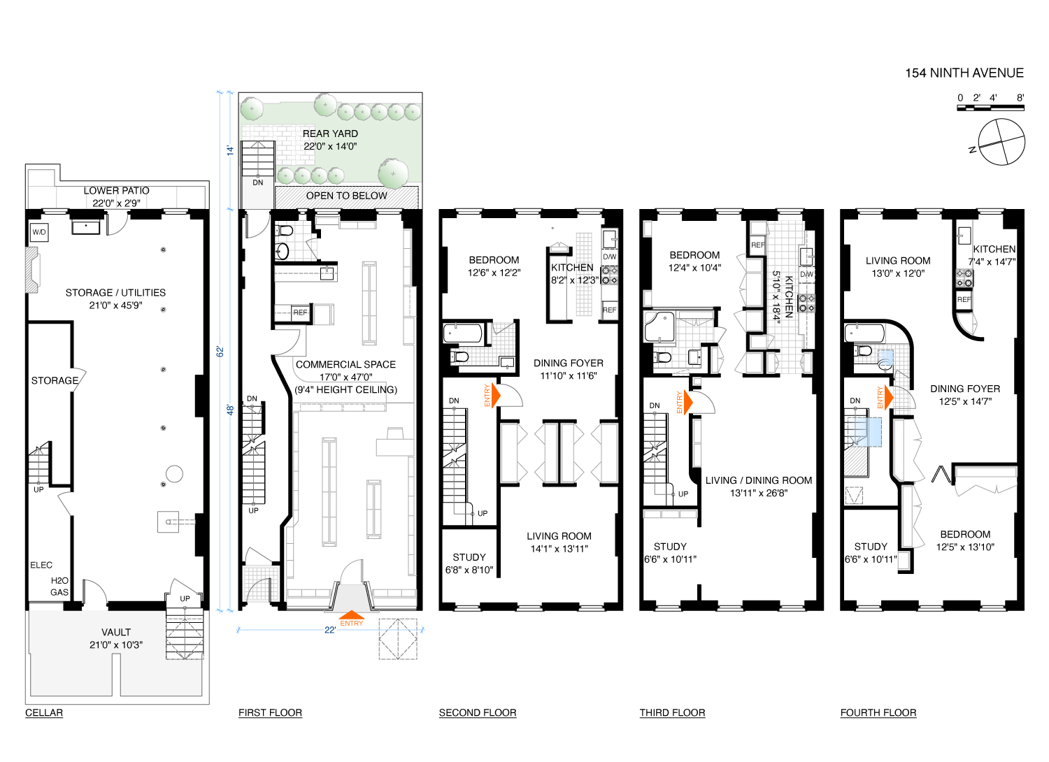
154 Ninth Avenue is a quaint, four-story, 22' wide, 4,424 square foot mixed-use townhouse with low real estate taxes, located on a quintessential block in the Chelsea landmark district. Approximately 49 feet deep, and on a lot that is 62 feet deep, 154 Ninth Avenue consists of a first-floor commercial storefront leased to Royal Care Pharmacy (through Feb. 2025) and three floor-through 2-bedroom / 1-bathroom apartments above it, with 2 out of 3 vacant and the third owner-occupied. A 308 square foot garden is accessed from the common area's ground floor, and there's a full basement with good working systems in place. Built in 1852 and owner-occupied for the last 45+ years, the building has good bones, very low real estate taxes, is well-maintained with updated systems (new boiler, water pipes replaced with copper pipes, sound proofing and insulation in units 3 and 4, and a renovated commercial space), and is in very good condition. To recap:

Lot Size: 22.1' x 62'

Building Size: 22' x 49'

Floors: 4 (1st floor commercial, three floor-through apartments above, full basement, and garden).

Int. Sq. Footage: 4424 sf

Ext. Sq. Footage: 308 sf

Annual Property Taxes: $29,764

Year Built: "Nos. 150-158 were built in the local vernacular, in 1852, for James M. Edgar. These buildings were constructed with shops on the ground floors and dwellings above, to meet the daily needs of the shopkeepers and to serve the growing population in the neighborhood" (quoted in the 1970 Chelsea Historic District Designation Report).

Location: Chelsea Landmarked Historic District block, on a coveted stretch of Ninth Avenue near countless art galleries, the High Line park, Chelsea Market, and many excellent restaurants and shops the Chelsea neighborhood has to offer.

Overview

Property Status
Sold
Lot Size
1,364 Sq.Ft.
MLS ID
RLS10940494
Property Type
Residential
Year Built
1852

Features & Amenities

Total Area
4,424 Sq.Ft.
Neighborhood
Chelsea
View Description
Other
Stories
4
Laundry Room
In Unit
Other Interior Features
Smoke Free
Sales Price
$5,500,000
Real Estate Tax
$29,772/yr

Downloads

154 9TH Avenue NA

Schedule a Tour

We would love to help you see this beautiful home! As a full-service brokerage, we can help you tour. Please submit an offer, and answer questions about the buying process.

Thank you

for your interest in 154 9TH Avenue NA, New York City, NY 10011

154 9TH Avenue NA
Navigate
Chelsea

Explore Chelsea

read more

I'm Interested In

154 9TH Avenue NA

Follow Us On Instagram